Projekte
Unsere Projekte
Wir betreuen alle Aufgaben und Themen, die im Bauwesen und in der Architektur anfallen, und bringen umfangreiche Erfahrungen sowohl im privaten als auch im gewerblichen Bereich mit. Auf dieser Seite präsentieren wir Ihnen eine Auswahl unserer Projekte.
1 | Einfamilienhäuser
Die Planung von Einfamilienhäusern aller Größenordnungen ist unser tägliches Geschäft. Neben den „klassischen“ Einfamilienhäusern liegt unser Augenmerk auch auf der Realisierung individueller Objekte, z.B. durch besondere Grundrisse, unkonventionelle Bauformen oder spezieller Baumaterialien. Wir haben hier bereits eine Vielzahl an Objekten planen und begleiten dürfen; vom „klassischen Einfamilienhaus“ in Massivbauweise über hochwertige Wohnhäuser mit exklusiver Ausstattung bis hin zu nachhaltigen Objekten unter Verwendung nachhaltiger Baustoffe und Verwendung regenerativer Energie. Aus Diskretionsgründen zeigen wir hier nur eine kleine Auswahl.
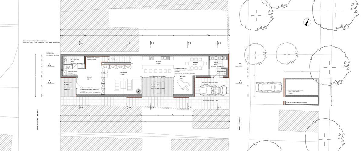
Villa H
Neubau eines exklusiven Einfamilienhauses
Neubau eines Einfamilienhauses mit versetzten Pultdächern. Zwischenzone als lichtdurchfluteter Erschließungsbereich.
- Großzügige Verglasungen
- Umfangreiche Gebäudeleittechnik
- Zentrale Lüftungsanlage
- Fahrstuhl
Haus D
zeitgemäße, nachhaltige Architektur in Holzrahmenbauweise, offene Wohnräume durch Entfall von Zwischendecken
Anstelle eines älteren Massivgebäudes, dessen Sanierung kostenintensiv und mit zahlreichen Kompromissen verbunden wäre, wurde ein zeitgemäßer, barrierefreier Neubau in nachhaltiger Holzrahmenbauweise errichtet.
Bauherrenwunsch war ein Gebäude, welches sich in das bestehende, naturverbundene Grundstück mit älterem Baumbestand in Siedlungsrandlage einfügt aber dennoch als zeitgemäßer Neubau wahrnehmbar ist und zeitgemäße Wohnvorstellungen und Barrierefreiheit erfüllt.
Entstanden ist ein klarer Baukörper aus nachhaltigen Baustoffen auf einer Stahlbetonsohlplatte, welche aufgrund der Lage im Überschwemmungsgebiet über einen erhöhten Sockel verfügt. Die Wohnräume wirken aufgrund des Entfalls von Zwischendecken großzügig und luftig. Die großzügige Verglasung verbindet den Außenraum mit dem Innenraum.
Beheizt wird das Gebäude über eine Luft-Wasser-Wärmepumpe und Fußbodenheizung; der hierfür erforderliche Strom wird über eine Photovoltaikanlage erzeugt.
Villa K
zeitgemäße Architektur, großformatige Fensteröffnungen, offener Grundriss
Großzügiges Einfamilienhaus im Stadtvillen-Typus in Hanglage. Das Geländeniveau verspringt um ca. 3,00m im Bereich der Gebäudetiefe. Dies ermöglicht einen stufenlosen Zugang vom Wohnbereich auf das Carportdach, welches als ca. 100m² große Dachterrasse mit Dachgarten genutzt wird. Der Innenraum wird von 2 Lufträume und einer Galerie geprägt und wirkt dadurch hell und großzügig.
Das Gebäude verfügt über modernste Gebäudeleittechnik (BUS-System) sowie Erdwärme-Heizung
Marina Bad Essen
Doppelhaus mit Staffelgeschoss und Dachterrasse
Aufteilung in zwei Vollgeschosse zuzüglich Staffelgeschoss mit Dachterrasse.
Der Wohnbereich ist zum Garten ausgerichtet und großzügig verglast. Die Küche mit Eckverglasung zum Hof bietet Ausblick auf den Hof. Im Obergeschoss befinden sich 2 gleichwertige Kinderzimmer sowie das Elternschlafzimmer.
Das Studio im Staffelgeschoss mit Zugang zur Dachterrasse und Blick auf die Marina bietet enorme Aufenthaltsqualitäten.
Haus K
ca. 250m² Wohnfläche, individuelle Architektur, offener Grundriss
Wohngebäude mit offenem Grundriss und Galerie. Hervorzuheben ist der ca. 140m² große und teilweise bis zu 6,50m hohe Wohnbereich mit offener Küche, Eßbereich, Bibliothek und Kamin.
Die Schlafräume mit Ankleidezone sowie die privaten Räume sind in einem Riegel mit offener Galerie zum Wohnbereich positioniert.
Das Gebäude verfügt über modernste Gebäudeleittechnik (BUS-System)
Haus S
Neubau eines Einfamilienhauses mit Pultdach
Neubau eines Einfamilienhauses mit Pultdach. Das Pultdach wird zur Erzeugung von Strom mittels Photovoltaik genutzt. Die Gartenseite ist großzügig verglast.
Die Gartenseite ist 1-etagig; die Straßenseite 2-etagig (Galerie).
Das Gebäude verfügt über eine Gebäudeleittechnik aktuellen Standards.
Das Gebäude wird aus 2-schaligem Mauerwerk errichtet; Innen Kalksandstein, außen Klinker.
Haus HH
Neubau eines Einfamilienhauses in klassischer aber dennoch moderner Bauweise
Neubau eines Einfamilienhauses mit 2 Vollgeschossen und einem nebenliegenden Doppelcarport.
Die Verlängerung des Carportdaches führt bis zum Haupteingang, sodass das Gebäude trockenen Fußes erreicht wird.
Aufgabe war, einen klassischen aber dennoch modernen und klaren Baukörper zu entwerfen.
Es wird eine moderne Gebäudeleittechnik in Form eines „schlanken“ BUS-Systemes installiert.
Wir haben die Leistungsphasen 1-4 (Entwurf inkl. Bauantrag) bearbeitet.
Haus G
Einfamilienhaus mit zeitgemäßem, großzügigem Grundriss
Einfamilienhaus in ländlicher Lage. Hervorzuheben ist das um ca. 50cm abgesenkte Wohnzimmer. Hierdurch wirkt der Wohn-Eßbereich großzügig und wird dennoch zoniert und gemütlich. Die Wohnliche Atmosphäre wird durch einen sowohl vom Eßbereich als auch vom Wohnbereich einsehbaren Kamin unterstützt.
Die PKW-Garage ist in das Gebäude integriert. Dadurch wirkt die Gebäudeform klarer; zusätzlich ist ein direkter Zugang zum Wohnraum möglich.
Haus H
zeitgemäßer Grundriss, großformatige Fensteröffnungen, Klinkerfassade
Einfamilienhaus mit versetztem Pultdach. Offenes Carport mit direktem Zugang zum Haus und überdachter Zuwegung zur Haustür.
Überdachte Terrasse von Wohnzimmer und Eßbereich erschlossen.
2-Schaliges Mauerwerk mit Klinker.
Seniorengerechter Bungalow H
Neubau eines seniorengerechten Bungalows
Neubau eines seniorengerechten, barrierefreien Bungalows in massiver, 2-schaliger Bauweise. Dies ist die bauphysikalisch und bautechnisch optimale und langlebigste Lösung.
Der Bungalow ist als Winkelbungalow mit teilüberdachter Südterrasse konzipiert.
Das angeschlossene Carport verfügt über einen direkten Zugang zum Gebäude.
Doppelhäuser
Neubau von Doppelhäusern in zukunftsweisender, monolithischer Bauweise
Dieses Doppelhaus besteht aus zwei Hälften mit jeweils ca. 122m² Wohnfläche. Aufgrund der Besonderheit der Lage gilt es, die klassische Gebäudeform (Satteldach) modern zu interpretieren. Die Wohnräume sind Dank der großzügigen Verglasungen hell und freundlich. Der auskragende Baukörper des Obergeschosses überdacht Teile der Terrasse, wodurch hier zusätzliche Aufenthaltsqualitäten entstehen.
Besonders ist die Baukonstruktion aus wärmegedämmten Porotonsteinen (monolithischer Wandaufbau). Dies bietet sowohl für den sommerlichen als auch für den winterlichen Wärmeschutz erhebliche bauphysikalische Vorteile und ist erheblich dauerhafter als ein Wärmedämmverbundsystem.
2 | Mehrfamilienhäuser
Die hohe Nachfrage nach Wohnraum und die Sanierungserforderlichkeit älterer Bestandsbauten in Kombination mit stetig steigenden Baukosten und steigenden Finanzierungskosten erfordern ein Umdenken in der Konzeption und Planung. Aufgrund zahlreicher bereits geplanter und gebauter Objekte in teils komplexer Umgebung verfügen wir über sehr umfangreiche Erfahrung bei der Planung und Realisierung von Mehrfamilienhäusern bzw. Wohn- und Geschäftshäusern. Auch hier liegt unser Augenmerk auf der Realisierung moderner, individueller und flexibel nutzbarer Objekte, da dies die Attraktivität und somit die Rentabilität als auch die Nachhaltigkeit eines Objektes maßgeblich beeinflußt. Parallel analysieren wir anhand von Studien verschiedene mögliche künftige Wohnformen, um hieraus gewonnene Erkenntnisse bei der Umsetzung von Objekten einfließen zu lassen.
Mehrfamilienhaus K
Neubau eines 6-Parteien-Wohnhauses im kfw-Effizienzhausstandard
In prägnanter, ortsbildprägender Lage, umgeben von Baudenkmälern haben wir diesen Neubau eines Mehrfamilienwohnhauses im kfw-Effizienzhausstandard geplant.
Herausfordernd war neben den Besonderheiten des Grundstückzuschnittes aufgrund 2-seitiger Straßen und naher Bebauung die erforderliche Einbindung in das Ortsbild aufgrund angrenzender Baudenkmäler. Hier galt es, eine den aktuellen, modernen Wohnvorstellungen entsprechendes Gebäude zu entwerfen, welches sich in das Ortsbild, bestehend aus Fachwerkhäusern, einfügt. Die verwendeten Materialen mit einer Kombination aus Putz und Holz interpretieren die Materialien der angrenzenden, denkmalgeschützten Fachwerkgebäude auf zeitgemäße Weise.
Besonderheit der 6 Wohnungen ist die konsequente Vermeidung von Fluren/Verkehrsflächen, sodass sämtliche Flächen den Bewohnern als effektiver Wohnraum zur Verfügung stehen.
Das Objekt wurde im kfw-Effizienzhaus-Standard geplant. Jede Wohnung verfügt über eine eigene Lüftungsanlage. Beheizt wird das Gebäude durch eine Luft-Wasser-Wärmepumpe; der hierfür erforderliche Strom wird über eine PV-Anlage erzeugt. Stromüberschuß wird in einem Akku gespeichert bzw. kann durch intelligente Ladesäulen zum Laden von Elektro-Autos genutzt werden.
Wir haben sämtliche Leistungsphasen von der 1. Entwurfsskizze über das Genehmigungsverfahren bis einschließlich der Objektüberwachung/Bauleitung erbracht und darüber hinaus die Abbrucharbeiten des abgängigen Gebäudes in sehr engen räumlichen Verhältnissen koordiniert.
Dreiparteienhaus
Neubau eines Dreiparteienhauses
Zwei barrierefreie Wohnungen im Erdgeschoss, eine Wohnung im Obergeschoss
Zeitgemäße aber dennoch klassische Architektur
Großzügige Fensteröffnungen zur Süd– und Westseite
Beheizung durch Luft-Wärme-Pumpe mit Fußbodenheizung
Photovoltaikanlage mit Batteriespeicher
Wohn-Geschäftshaus
Neubau eines Wohn-Geschäftshauses
Gewerbe im Erdgeschoss, Wohnen im Obergeschoss
Architektur in Anpassung an die angrenzende Siedlungsbebauung
Akzentuierung des Gewerbebereiches durch einen Materialwechsel im Bereich der Schaufensterfront und des Eingangsbereiches
Wohnung mit offenem Wohn-Eßbereich und angrenzender Dachterrasse auf der Westseite
Flexible Grundrissgestaltungsmöglichkeit des Erdgeschosses
Reihenhaustypus
Konzept zur Errichtung von Reihenhäusern in zeitgemäßer aber dennoch ländlicher Architektur
Modular erweiterbare Reihenhaustypen
Möglichkeit des "Rundgangs" um das Gebäude und Durchblick zum hinterliegenden Wasser; Auflösung der reihenhaustypischen geschlossenen Straßenfront
2 Vollgeschosse zuzüglich Staffelgeschoss mit Dachterrasse
Zweifamilienhaus
Neubau eines Zweifamilienhauses
Neubau eines Zweifamilienhauses mit zwei vollgeschossen im ENEV-Standard.
Der Hauptbaukörper wird verklinkert. Untergeordnete Bauteile, wie z.B. Auskragungen des Obergeschosses, welche gleichzeitig zur Überdachung der Eingangsbereiche dienen, werden verputzt und farblich abgesetzt.
Wir wurden mit der Planung und Einholung der Baugenehmigung beauftragt; die Umsetzung erfolgte in Eigenleistung.
3 | Sanierungen
Ein weiterer Schwerpunkt liegt im Bereich der Sanierung; speziell im Bereich der denkmalgerechten Fachwerksanierung sowie von Objekten im baurechtlichen Außenbereich.
Zahlreiche historische Gebäude im Landkreis Osnabrück als auch im Kreis Minden-Lübbecke und im Nordkreis wurden bereits saniert, weitere Objekte sind derzeit in Planung. Insbesondere die Wahrung der historischen Elemente unter Berücksichtigung der energetischen Optimierung ist hierbei unser Hauptaugenmerk. Durch eine gute Planung ist hierbei das Erreichen der Vorgaben des GebäudeEnergieGesetzes (GEG) und somit die Minimierung der Energieverbräuche möglich!
Im Außenbereich herrscht „privilegiertes Baurecht“. Es werden strenge Vorgaben an die Realisierbarkeit von Um- oder Neubauten gestellt, deren Berücksichtigung und Einhaltung essentiell für die Genehmigungsfähigkeit sind. Wir haben bereits bei zahlreichen Objekten im Außenbereich zum positiven Gelingen beigetragen. Hierzu zählen z.B. der Umbau von landwirtschaftlichen Hofstellen zu (Mehrparteien-) Wohnraum, die Sanierung von Wohn-/Gewerbegebäuden sowie die Planung von Altenteilern oder Betriebsleitergebäuden.
Villa H
Anbau eines Fahrstuhles als Verbindungsbau zwischen Wohnhaus und Garage
Der Verbindungsbau wurde zwischen einer freistehenden Garage und dem Wohnhaus errichtet.
Einbau eines Fahrstuhles zur barrierefreien Erschließung der Wohnräume im Obergeschoss.
Fahrstuhl mit vertikalem Fensterband; Ausblick aus dem Fahrstuhl
Gestaltung des Zwischenbaus als moderner Baukörper im Kontrast zur vorhandenen historischen Bausubstanz; Verkleidung des ca. 10m hohen Fahrstuhlschachtes mit für das Gebäude individuell angefertigten Fassadentafeln.
Errichtung und Anbindung des Fahrstuhles während des Bewohnen des Gebäudes
Haus B
Sanierung eines Fachwerkgebäudes, hochwertige detailgetreue Sanierung, private Wohnnutzung
Freilegen der historischen Fachwerkfassade durch Abbruch einer Verschindelung, Austausch verrotteter Bauteile
Errichtung von 6 Dachgauben zur Schaffung von nutzbaren Wohnflächen im Dachgeschoss, Errichtung eines neuen Dachstuhles
Innendämmung der Fachwerkwände durch eine Holzwolle-Innendämmung mit einem mehrlagigen Lehmputz
Freilegen verdeckter Fachwerkinnenwände
Einbau neuer Holzfenster mit scheibenteilenden Sprossen nach historischem Vorbild
Ertüchtigung der vorhandenen Holzbalkendecke gemäß aktuellen Brandschutz- und Schallschutzvorschriften.
Erneuerung der Böden, Aufarbeiten historischer Oberflächen (z.B. Sohlenhofener Platten)
Erneuerung sämtlicher technischer Gebäudeausstattung
Büro w+k
Sanierung und Umnutzung eines Wohnhauses zu einem Bürohaus
Erneuerung der Elektroinstallation inkl. neuer Elektroverteilung und neuer Netzwerkinstallation inkl. Videoüberwachung
Erneuerung sämtlicher Oberflächen
Errichtung neuer Sanitärinstallationen
Überarbeitung der Fassade durch neuen Putz
Erneuerung der Außenanlagen und Errichten einer Freitreppe
Haus L
Ausbau eines ungenutzten Dachbodens zu Wohnräumen
Erneuerung der Dacheindeckung, Einbau großzügiger Dachflächenfenster zur Belichtung
Dämmung ungedämmter Giebelflächen durch eine Außendämmung, verkleidet mit einer vertikalen Holz-Boden-Deckel-Schalung
Zwischensparrendämmung mit Dampfbremse
Zementgebundener-Perlite-Dämmestrich als Ausgleichsschicht der vorhandenen unebenen Geschossdecke; Aufbringen eines Trockenestriches
Errichtung eines separaten Zuganges der Obergeschosswohnflächen.
Haus F
Energetische Modernisierung und Dachgeschossausbau
Das vorhandene Einfamilienhaus wurde energetisch modernisiert und das Dachgeschoss zu Wohnräumen ausgebaut. Hierzu wurde auf der straßenabgewandten Seite eine sich über 2 Etagen erstreckende Gaube errichtet, in welcher die neue Treppe positioniert wurde. Die Dacheindeckung wurde unter Berücksichtigung aktueller energetischer Erforderlichkeiten erneuert, wobei großes Augenmerk auf den Erhalt der Gebäudeoptik gelegt wurde. Sämtliche Innenräume wurden modernisiert.
Mehrfamilienhaus G
Umbau eines landwirtschaftlichen Hauptgebäudes mit Diele zu einem Mehrfamilienhaus
Der nicht mehr genutzte Wirtschaftsteil (ehemals Diele/Kuhstall) des Gebäudes sollte aufgrund des Leerstandes zu mehreren zeitgemäßen Wohnungen umgebaut werden.
Zunächst wurde ein nicht mehr erforderlicher und unter wirtschaftlichen Aspekten nicht sanierungsfähiger Stallanbau abgebrochen und das Wohnhaus als solitärer Baukörper freigestellt. Anschließend wurden die Stalleinbauten zurückgebaut und die durch Stallnutzung kontaminierten Bauteile (Wände/Stützen) saniert. Eine Stahlbetonsohlplatte sowie eine Stahlbetondecke wurden eingezogen und ein neues, zentrales Treppenhaus errichtet. Um dem Gebäude ein ansehnliches Äußeres zu verschaffen und darüber hinaus zeitgemäßen Wohnraum zu errichten, wurden großflächige Gauben errichtet.
Entstanden sind 3 zusätzliche Wohnungen mit zeitgemäßer Ausstattung wie z.B. Fußbodenheizung und Balkon/Terrasse sowie ansprechender offener und heller Grundrissgestaltung.
Mehrfamilienhaus Gm
Sanierung eines Wohn- und Gaststättengebäudes; Umnutzung zu Wohneinheiten
Neuaufteilung der vorhandenen Räume, Gestaltung von 4 Wohnungen zuzüglich Nebenräumen
Abbruch der vorhandenen, verrotteten Kellerdecke und Einziehen einer neuen Stahlbetondecke
Ertüchtigung der vorhandenen Holzbalkendecke nach aktuellen Brandschutz- und Schallschutzvorschriften; Ertüchtigung des Tragwerkes
Errichtung neuer Erker bei Erhalt des Dachstuhles und der Dacheindeckung
Gestaltung zeitgemäßer, bodentiefer Fensteröffnungen in den Wohnbereichen mit Zugang zu Terrassen
Abbruch einer nachträglichen Verklinkerung; Außendämmung durch ein Wärmedämmverbundsystem
Mehrfamilienhaus BE
Fassadensanierung einer vorhandenen asbesthaltigen Fassade, Sanierung eines schadhaften Flachdaches
Abbruch der vorhandenen, asbesthaltigen Fassadenbekleidung
Abbruch der schadhaften Dachabdichtung
Aufbringen einer zeitgemäßen Außendämmung
Aufbringen einer zeitgemäßen Gefälledämmung auf den Flachdachflächen
Burg Wittlage
Sanierungsarbeiten an der historischen, denkmalgeschützten Bausubstanz des Tagungs- und Gästehauses
Erneuerung und Austausch zahlreicher tragender und nichttragender Bauteile nach Schwamm- und Schimmelbefall
Erneuerung der Oberflächen
Aufarbeitung der historischen Elemente und Bauteile, wie z.B. einer historischen Holztreppe
Haus GS
Sanierung eines Fachwerkgebäudes, hochwertige detailgetreue Sanierung, private Wohnnutzung
Erneuerung der Böden mit Holzdielen
Aufbau einer Dachgaube und Integration in das bestehende Schieferdach
Veränderung und Anpassung verschiedener Einbaumöbel
Erneuerung der Terrassenbeläge (gelichzeitig Dach der Garagen) inkl. der Erneuerung der wasserführenden Ebenen.
Haus W
Sanierung eines Fachwerkgebäudes, Verbindung von Alt und Neu, Denkmalschutz
Gestaltung des Innenraumes gemäß aktueller Wohnvorstellungen als offener Wohnraum mit modernsten Materialien im Kontrast zur historischen Umgebung des Fachwerks aus dem 17. Jahrhundert.
Besonderes Augenmerk wurde auf den respektvollen Umgang mit der historischen Bausubstanz gelegt, die Dank der schlichten, neu eingebrachten Materialien in Szene gesetzt wird und die Atmosphäre des Raumes prägt.
Es wurden zahlreiche außergewöhnliche Detaillösungen erarbeitet, wie z.B. eine aus Beton gegossene, antiseptische Küchenarbeitsplatte welche den Mittelpunkt des zentralen Raumes bildet.
Verwaltungsgebäude S
Sanierung eines Fachwerkgebäudes; Umnutzung zum Verwaltungsgebäude
Entkernen und Einbau einer neuen Sohlplatte inkl. Dämmung
Erneuerung sämtlicher Zwischendecken
Erneuerung sämtlicher Elektro- und Sanitärinstallationen
Austausch und Ergänzung des defekten Fachwerks; Ergänzung und Verstärkung der tragenden Konstruktion
4 | Industrie- und Gewerbebau,
Senioren- und Pflegeheime
Nirgendwo sind die ökonomischen Aspekte so wichtig wie im Industriebau. Hier gilt es, durch die Architektur die Produkte des Bauherren entsprechend zu präsentieren, das Objekt energetisch optimiert zu planen und es so ökonomisch wie möglich umzusetzen. Auch hier können wir auf lange Erfahrungen und namhafte Bauherren zurückblicken. Weitere Projekte befinden sich derzeit in Planung und werden in Kürze realisiert.
Ein Schwerpunkt des Büros liegt in der Planung von Bauten im Gesundheitswesen. Hier können wir auf jahrzehntelange Erfahrung zurückblicken. Anbei sehen Sie exemplarisch 4 Projekte in Pr.-Ströhen, Bad Essen, Schledehausen und Preußisch Oldendorf. Ein weiteres Projekt im benachbarten Nordrhein-Westfahlen ist derzeit in Planung und steht kurz vor der Realisierung.
Baumarkt in Bad Essen
Erweiterung eines Baumarktes in Bad Essen (in laufendem Betrieb)
Der 2004 errichtete Standort wurde ab 2024 im laufenden Betrieb (ohne Schließzeiten) erweitert. Es wurde eine 54m x 75m großen Stahlrahmen-Lagerhalle mit 7,50 stützenfrei auskragendem Dach errichtet. Die Halle befindet sich auf komplexem Baugrund und überbaut ein Fließgewässer, woraus eine spezielle Gründung resultierte.
Durch ein 14m langes, freitragendes Zwischendach ist die Halle mit dem Fachmarkt verbunden.
Die Fachmarkterweiterung erfolgt in gleicher Konstruktion des Bestandes aus großformatigen KS-Elementen. Die stützenfreien Innenräume werden durch Leimholzbinder der Dachkonstruktion erzielt, sodass Bestand und Erweiterung eine optische Einheit bilden.
Weiterhin wurde eine überdachte Außenverkaufsfläche sowie ein zusätzlicher Westeingang errichtet und Büroräume sowie ein Besprechungsraum in der Galerieebene des Bestandes ausgebaut.
Sämtliche Maßnahmen erfolgten in laufendem Betrieb, sodass zusätzlich ein wesentlicher Augenmerk auf der Koodination des Bauablaufes zur Gewährleistung eines reibungslosen Bauablaufes bei gleichzeitig reibungslosem Betriebsablauf lag.
Lidl Melle
Erweiterung eines Supermarktes
Der vorhandene Supermarkt wurde in laufendem Betrieb um ca. 300m² Verkaufsfläche erweitert und der Standort optisch sowie technisch modernisiert. Die Erweiterung erfolgte auf der „Rückseite“, sodass durch die Installation einer Interims-Wand, der Vorfertigung von Bauteilelementen sowie teils Nachtarbeit der Verkauf weitergeführt werden konnte und nur wenige Schließtage, im Wesentlichen für die optische Modernisierung der Bestandsverkaufsflächen und die Anpassung der Regalierung, erforderlich wurden.
Werkstatt H
Werkstattgebäude mit Verkaufsfläche in Bad Essen
Neubau eines Werkstattgebäudes mit angrenzenden Verkaufsräumen. Das Gebäude wurde in Stahlskelettkonstruktion mit Sandwichelementen errichtet.
Besonderheit ist die große Eckverglasung in Pfosten-Riegel-Konstruktion
Neubau Gewerbe
Neubau eines Orthopädie-Schuhtechnik- und Sanitätshauses
Neubau der Geschäftsräume und Sanierung und Umbau einer vorhandenen Halle zu Werkstatträumen. Das Gebäude wurde aus zweischaligem Mauerwerk errichtet. Hervorzuheben sind die außenliegenden Fenster, wodurch die schaufensterfläche vergrößert wird. Die Belichtung erfolgt durch großzügige, elektrisch zu öffnende Dachverglasungen.
Das Gebäude wurde in charakteristischem Anthrazit gestrichen, welches zu einem für Gewerbetreibende wichtigem erhöhten Wiedererkennung führt.
Seniorenheim Pr.-Ströhen
Erweiterung des bestehenden Seniorenwohnheimes mit Einzelzimmern
Erweiterung des bestehenden Seniorenheimes zur Teilung der Doppelzimmer in Einzelzimmer. Aufgrund schwieriger Bodenverhältnisse wurde das Gebäude auf ca. 90Stck, ca. 20m tiefe Bohrpfähle gegründet.
Im 2.Bauabschnitt wurden die Tagespflege saniert und der Eingangsbereich erweitert.
Außerdem wurde einige Räume renoviert und die aktuellen, strengen Brandschutzvorschriften umgesetzt.

Sporthalle
Erweiterung der Sporthalle Westerhausen / Föckinghausen
Erweiterung der Sporthalle um zwei Bewegungsräume sowie die Geschäftsstelle des Sportvereines.
Konstruktion aus zweischaligem Mauerwerk. Die Dacheindeckung erfolgte aus Trapez-Blechen. Aufgrund der Lage im Überschwemmungsgebiet herrschen erhöhte Anforderungen an die Gründung.
Erweiterung Supermarkt
Erweiterung eines EDEKA-Supermarktes in Melle-Buer
Der vorhandene Supermarkt wurde um ca. 700m² erweitert und die bestehenden Verkaufsflächen saniert.
Die Baumaßnahme erfolgte im laufenden Verkaufsbetrieb. Um die notwendige Schließung der Verkaufsräume auf ein Minimum zu begrenzen, wurde im Mehrschichtbetrieb gearbeitet.
Der Wandaufbau ist zweischalig. Die großen stützenfreien Spannweiten werden durch Fachwerkbinder erreicht. Der Konstruktionsraum im Dachgeschoß dient gleichzeitig als Installationsraum.
Seniorenwohnheim Schledehausen
Neubau eines Seniorenwohnheimes
Das Seniorenheim wurde in Massivbauweise mit Wärmedämmverbundsystem errichtet. Das Dach verfügt über Ziegeleindeckung. Die Fenster sind aus Kunststoff.
Zur Auflockerung wurden Fassadenbereiche farblich abgesetzt. Gemeinschafträume sind außerdem durch eine Sonderform (rund) hervorgehoben.
Wohnpark Bad Essen
Neubau eines Seniorenwohnheimes auf einer bestehenden Tiefgarage
Errichtung eines Seniorenpflegeheimes auf einer bestehenden Tiefgarage. Des Gebäude wurde in Massivbauweise mit Wärmedämmverbundsystem errichtet. In Anpassung an örtliche Bauvorschriften erfolgte ein Walmdach. Die Dacheindeckung erfolgte aus Ziegeln.
5 | Öffentliches Bauen
Öffentliche Bauvorhaben zeichnen sich neben der Publikumswirksamkeit durch besondere bürokratische Anforderungen aus, die es detailliert einzuhalten gilt. Insbesondere der Bereich der Leistungsverzeichnisse/Ausschreibung unterscheidet sich erheblich, da im Interesse einer objektiven, transparenten und gleichberechtigten Auftragsvergabe teils europaweit ausgeschrieben werden muß, wobei sicherzustellen ist, dass hiesige Qualitätsmaßstäbe erfüllt werden. Gleichzeitig stehen im Interesse des Steuerzahlers die ökonomischen Aspekte im Vordergrund. Hier gilt es, durch eine exakte Planung sämtliche Unwägbarkeiten im Vorfeld zu klären, um auf dieser Basis die Leistungsverzeichnisse vollumfänglich zu erstellen und das Bauvorhaben so ökonomisch wie möglich umzusetzen. Auch hier können wir auf lange Erfahrungen und repräsentative, vielseitige Bauvorhaben zurückblicken. Weitere Projekte befinden sich derzeit in Planung und werden in Kürze realisiert.
Anbau von Sozialräumen
Anbau von Sozialräumen an einen Baubetriebshof
Der bestehende Baubetriebshof wurde um zeitgemäße Sozialräume mit Sanitärräumen sowie einem Büroraum erweitert. Die bestehenden Nebenräume wurden in diesem Zuge ertüchtigt und umgenutzt, aktuelle Brandschutzvorgaben wurden umgesetzt und die Gebäudetechnik modernisiert. Die bisherigen Nachtspeicheröfen wurden durch eine Luft-Wasser-Wärme-Pumpe mit Fußbodenheizung ersetzt.
Erweiterung eines Kindergartens
Der bestehende Kindergarten wurde im laufenden Betrieb renoviert und um einen Gemeinschaftsraum erweitert. Zur Erweiterung wurde die bestehende Außenwand großflächig geöffnet und Bestandsräume und Anbaufläche zu einem großzügigen, hellen Gemeinschaftsraum zusammengefasst.
Dachsanierung Freibad
Die abgängige Dacheindeckung der Nebengebäude (Umkleiden/Sanitärräume) des Freibades wurde durch ein neue Dacheindeckung ersetzt. Um die ideal ausgerichtete Dachfläche nutzbar zu machen, wurde zur Erzeugung regenerativer Energie hierauf eine Photovoltaikanlage sowie Wärmeabsorber aufgebracht, deren erzeugte Energie die naheliegende Schule (mit-)versorgt.
Modernisierung und Erweiterung des Rathauses
Das über Jahrzehnte stetig erweiterte, jedoch nicht modernisierte Rathaus weist altersbedingt erhebliche Mißstände auf, deren Behebung in einer Machbarkeitsstudie mit verschiedenen Varianten untersucht wurde. Im Mittelpunkt stand hierbei eine Kosten-/Nutzen-Analyse welche Gebäudeteile erhalten und modernisiert und welche Gebäudeteile durch einen Neubau ersetzt werden.
6 | Projektsteuerung
Insbesondere bei komplexeren Bauvorhaben in denen die Koordination der Planer, Fachingenieure, Behörden und Handwerker essentiell zum Gelingen beiträgt, ist eine strukturierte Projektsteuerung erforderlich. Wir unterstützen hierbei den Bauherren mit der Wahrnehmung der „Bauherrenpflichten“ und haben insbesondere das Ziel des Projektes (Planung/Zeitablauf/Kosten) im Blick.
Es gilt den Planungs- als auch den Bauablauf unter Berücksichtigung sämtlicher Unwägbarkeiten, von z.B. der Umsetzung von Brandschutzvorgaben, über die Überwachung sämtlicher erforderlicher Genehmigungen/Anträge bis zur frühzeitigen Berücksichtigung möglicher Verzögerungen aufgrund unvorhergesehener Ereignisse wie z.B. verzögerter Genehmigung aufgrund von Auflagen zu planen und zu strukturieren. Bei jedem Bauvorhaben – egal welcher Größenordnung – wird es zu Verschiebungen kommen, die, wenn Sie frühzeitig erkannt und durch Varianten durchdacht wurden, zu kompensierbaren Verschiebungen führen. Aufgrund unserer Erfahrung aus Bauvorhaben verschiedener Größenordnung und Komplexität, sind uns die kritischen Punkte bekannt, welche dementsprechend alternativ geplant werden können.
Wir sehen uns als Unterstützer, um im Interesse sämtlicher Beteiligten gemeinsam zum positiven Gelingen des Projektes beizutragen. Hier arbeiten wir in der Regel „im Hintergrund“ weshalb wir aus Diskretionsgründen keine Referenzobjekt zeigen. Zu erwähnen ist aber exemplarisch die Sanierung und Umbau eines denkmalgeschützten Gewerbeobjekts zu einer Senioren-Wg mit angrenzenden Wohnungen sowie die Aufstockung eines vorhandenen Geschäftshauses im laufenden Betrieb.
7 | Studien
Die Realisierbarkeit von Projekten oder die Konzeption neuer Ideen wird anhand von Studien/Machbarkeitsstudien vor Planungsbeginn kritisch überprüft. Je nach Objekt geschieht dies je nach Projekt z.B. auf Basis von Konzeptskizzen oder Animation, einer überschläglichen Kostenschätzung, einer Analyse der Eingriffe in die Natur und resultierender Kompensationsmaßnahmen oder eines überschläglichen Ablaufplanes, um die kritischen Meilensteine zu analysieren. Anhand dieser wird die Grundsätzlichkeit des Projektes geklärt, bevor relevante Kosten durch detaillierte Planungen entstehen. Die Erkenntnis hieraus ist für den Bauherren die Grundlage der Entscheidungsfindung, ob das Projekt zeitnah weiterverfolgt oder (zunächst) ausgesetzt wird.
Wir verfügen auch hier über zahlreiche Referenzen; von der energetischen Dachsanierung über den Neubau von Mehrfamilienhäusern/Wohnprojekten bis zur Sanierung eines Rathauses. Oft, aber nicht immer, resultiert daraus ein konkretes Bauvorhaben.
Entwicklung von Wohnkonzepten
Entwicklung zukünftiger Wohnkonzepte am Beispiel einer Baulücke in Berlin
Konzeption zur Nutzung vielfach vorhandener innerstädtischer Baulücken an vorhandenen Brandwänden am Beispiel eines Bauplatzes im Zentrum von Berlin und Entwicklung innovativer, flächenoptimierter Grundrisse.
Konzipiert wurde ein Grundriss, dessen Balkone mittels fahrbarer Elemente verschlossen und somit zur Wohnraumerweiterung – und damit zur ganzjährigen Nutzung – dient.
Modernisierung und Erweiterung des Rathauses
Das über Jahrzehnte stetig erweiterte, jedoch nicht modernisierte Rathaus weist altersbedingt erhebliche Mißstände auf, deren Behebung in einer Machbarkeitsstudie mit verschiedenen Varianten untersucht wurde. Im Mittelpunkt stand hierbei eine Kosten-/Nutzen-Analyse welche Gebäudeteile erhalten und modernisiert und welche Gebäudeteile durch einen Neubau ersetzt werden.
Haus L
Entwurf eines Einfamilienhauses in einer Baulücke, Bauherrenwunsch: aktuelle Architektur, offener Grundriss
Eine Baulücke mit einer bebaubaren Breite von 6,80m galt es mit einem Einfamilienwohnhaus zu beplanen. Bauherrenseitig bestanden hohe gestalterische Ansprüche als auch der Wunsch nach individuellen Lösungen.
Es wurde ein Baukörper in monolithischer Bauweise mit vorgefertigten Wandelementen entwickelt. Hierdurch konnten die Wandstärken reduziert und gleichzeitig energetisch optimale und hinsichtlich des Brandschutzes ideale Lösungen gefunden werden. Darüber hinaus wurden fahrbare Dachelemente entwickelt, welche Dachflächen großflächig öffnen ließen.
Reihenhaustypus
Konzept zur Errichtung von Reihenhäusern in zeitgemäßer aber dennoch ländlicher Architektur
Modular erweiterbare Reihenhaustypen
Möglichkeit des "Rundgangs" um das Gebäude und Durchblick zum hinterliegenden Wasser; Auflösung der reihenhaustypischen geschlossenen Straßenfront
2 Vollgeschosse zuzüglich Staffelgeschoss mit Dachterrasse
Doppelhäuser
Neubau von Doppelhäusern in zukunftsweisender, monolithischer Bauweise
Dieses Doppelhaus besteht aus zwei Hälften mit jeweils ca. 122m² Wohnfläche. Aufgrund der Besonderheit der Lage gilt es, die klassische Gebäudeform (Satteldach) modern zu interpretieren. Die Wohnräume sind Dank der großzügigen Verglasungen hell und freundlich. Der auskragende Baukörper des Obergeschosses überdacht Teile der Terrasse, wodurch hier zusätzliche Aufenthaltsqualitäten entstehen.
Besonders ist die Baukonstruktion aus wärmegedämmten Porotonsteinen (monolithischer Wandaufbau). Dies bietet sowohl für den sommerlichen als auch für den winterlichen Wärmeschutz erhebliche bauphysikalische Vorteile und ist erheblich dauerhafter als ein Wärmedämmverbundsystem.
Entwurf einer Segelschule
Entwurf einer Segelschule mit Tagungs- und Seminarräumen sowie Gästeappartements in exponierter Uferlage am Steinhuder Meer
Ein Baukörper sollte entwickelt werden, der bei maximal entstehender Nutzungsfläche möglichst geringe Eingriffe in die Natur erforderte sowie vorhandene Blickbeziehungen der Uferpromenade erhält.
Entwickelt wurde ein aufgeständerter Baukörper mit Süd-Westausrichtung. Die Stützenstellung wurde - in Anlehnung an dort verankerte Segelboote – unregelmäßig und in verschiedenen Winkeln gewählt, sodass aus der Ferne die Stützen des Baukörpers und die Masten der Segelboote kaum zu unterscheiden waren. Die öffentliche Uferpromenade wurde erweitert und somit der Uferbereich für die Öffentlichkeit erhalten. Besonderes Augenmerk lag auf dem sommerlichen Wärmeschutz um der Überhitzung vorzubeugen. Hierzu wurden öffenbare Fassadenelemente konzipiert, die bei Nutzung für den erforderlichen Einblick als auch den Ausblick auf das Steinhuder Meer ermöglichten und außerhalb der Nutzung verschlossen sind und somit das Aufheizen verhindern und darüber hinaus gestalterisch (in Anlehnung an die vorwiegende Himmelsfarbe) kaum störend wirken.
























































































































































































































































































































































































































































































































































